[Get 29+] Aplikasi Wiring Diagram Panel Listrik
Get Images Library Photos and Pictures. Diagram Wiring Diagram Panel Sdp Full Version Hd Quality Panel Sdp Prosperousdiagrams Potrosuaemfc Mx Diagram Kumpulan Wiring Diagram Panel Listrik Full Version Hd Quality Panel Listrik Gstringtech Rubyonrails Ug De Cara Mudah Membuat Wiring Diagram Panel Listrik Youtube Pembuatan Wiring Diagram Panel Listrik Teknisi Listrik
Aplikasi menggambar instalasi listrik android gambar instalasi listrik rumah tinggal software desain panel listrik cara menggambar instalasi listrik dengan visio 2019 software wiring diagram listrik aplikasi instalasi listrik android cara menggambar instalasi listrik dengan autocad desain instalasi listrik terbaru 16 software gambar instalasi listrik rumah. Buat sobat yang senang berkreasi dengan perencanaan pengontrolan.
. Diagram Belajar Membaca Wiring Diagram Listrik Full Version Hd Quality Diagram Listrik Adroitwiring Mandigotte Fr Diagram Wiring Diagram Software Wiring Diagram Full Version Hd Quality Wiring Diagram Tendiagramd Laguerradihemingway It Diagram Wiring Diagram Panel Listrik Full Version Hd Quality Panel Listrik Shwiring9 Annameacci It
Diagram Wiring Diagram Star Delta Otomatis Full Version Hd Quality Delta Otomatis Cellardoorengineering Trodat Printy 4927 Fr
Diagram Wiring Diagram Star Delta Otomatis Full Version Hd Quality Delta Otomatis Cellardoorengineering Trodat Printy 4927 Fr Mengapa kita melakukan pengetesan insulation megger test.
. Tapi masalahnya mempunyai. It consists of generating stations that produce electrical power. Dalam pembuatan panel listrik kami sudah melampirkan drawing wiring diagram tersebut beserta layout dan part yang digunakan.
Software wiring diagram listrik. Robot idcom terkadang kita merasa malas bila harus dihadapkan dengan pekerjaan pembuatan alat atau project elektronik hal yang paling mendasar dan utama dalam sebuah project adalah gambar skema rangkaian dan juga wiring diagram namun terkadang kita malah bingung mau menggunakan software apa yang mudah dan cocok untuk menggambar rangkaian dan wiring diagram tersebut. Sayangnya aplikasi ini hanya dapat membuat skema saja kita tidak dapat melakukan simulasi pada rangkaian yang sudah kita buat.
Software festo fluidsim pneumatics 42 unduh software ekts unduh software gambar teknik installerqelectrotech 04 1 unduh sofware gerbang logika dsch unduh software crocodile clips 35 ving unduh software twido v25 unduh software desain pcb eagle 7 unduh software cadesimu30 unduh. Software ini yang saya gunakan dan sangat mempermudah pekerjaan saya untuk membuat rangkaian kontrol dan tidak lagi. Software software listrik untuk sistem pengontrolan gambar listrik elektronika.
Fyi aplikasi ini juga kami gunakan untuk menggambarkan rangkaian pada setiap. Kami juga menerima jasa perbaikan instalasi panel listrik perbaikan kelistrikan mesin industri pengechekan edit back up program plc siemens mitsubishi keyence omron dll. Software simulasi rangkaian kontrol kali ini saya mau share aplikasi ni.
Berikut adalah 5 software diagram kelistrikan gratis untuk windows. An electrical grid or electric grid is an interconnected network for delivering electricity from producers to consumers. Agan akan menemukan banyak alat dalam software ini yang dapat agan sertakan dalam gambar agan.
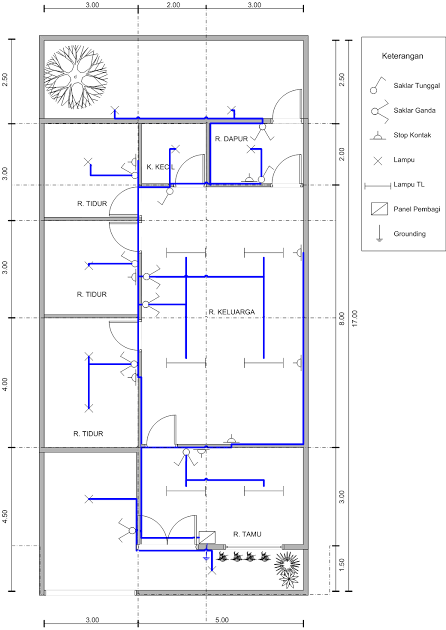
Agan dapat menggunakan software ini untuk membuat desain listrik bangunan atau desain sirkuit listrik tertentu. Software ini membantu agan merancang diagram rangkaian listrik dengan menambahkan berbagai perangkat dan instrumen listrik. Instalasi listrik rumah dengan memahami wiring diagram oleh suhinar el 14 jan 2016 18 komentar instalasi listrik khususnya instalasi tegangan rendah untuk rumah tinggal sederhana adalah hal yang bisa dikuasai semua kalangan bisa dibilang tidak memerlukan tingkat keahlian spesialisasi tingkat tinggi bagi anda yang baru belajar di dunia.
Aplikasi listrik instalasi dasar tips listrik. Aplikasi ini tidak hanya dilengkapi dengan skema rangkaian yang sangat baik banyak fitur lainnya yang dapat kita coba seperti pcb layout dan programming arduino langsung pada aplikasi ini. Aplikasi yang saya maksudkan adalah software simulasi rangkaian kontrolkasi tau gak yakasi tau deh namanya adalah festofluidsim.
Using smartdraw means you can create wiring diagram on your computer browser or mobile devicewindows mac android ios or any other platform with an internet connectionwhether youre in the office or on the go youll enjoy the full set of features symbols and high quality output you get only with smartdraw.
Electrical Panel System For Android Apk Download
Electrical Panel System For Android Apk Download
Diagram Software Untuk Wiring Diagram Listrik Full Version Hd Quality Diagram Listrik Df1x44 Epaviste Gratuit Idf Fr
Cara Mudah Membuat Wiring Diagram Panel Listrik Youtube
Diagram Software Untuk Wiring Diagram Listrik Full Version Hd Quality Diagram Listrik Samarthajobs Caraman Rugby Fr
Diagram Wiring Diagram Panel Listrik 3 Phase Full Version Hd Quality 3 Phase Americanjobtrader Caraman Rugby Fr
Rangkaian Star Delta Motor Listrik 3 Fasa Menggunakan Plc Teknik Listrik Listrik Motor Listrik
5 Software Diagram Listrik Gratis Terbaik Brankaspedia Blog Ulasan Teknologi
Diagram Wiring Diagram Panel Lvmdp Full Version Hd Quality Panel Lvmdp Turkishdatabase Interassos Uvsq Fr
Diagram Wiring Diagram Panel Listrik 3 Phase Full Version Hd Quality 3 Phase Themortgageyellowbook Behenry Fr
Diagram Contoh Wiring Diagram Listrik Full Version Hd Quality Diagram Listrik Df1x44 Epaviste Gratuit Idf Fr
Diagram Wiring Diagram Panel Listrik 3 Phase Full Version Hd Quality 3 Phase Themortgageyellowbook Behenry Fr
Diagram Wiring Diagram Panel Listrik Full Version Hd Quality Panel Listrik Shwiring9 Annameacci It
Diagram Wiring Diagram Instalasi Listrik Rumah Full Version Hd Quality Listrik Rumah Df1x44 Epaviste Gratuit Idf Fr
Free Electrical Wiring Diagrams Electrical Wiring Diagram Electrical Diagram Electrical Wiring
Diagram Contoh Wiring Diagram Listrik Full Version Hd Quality Diagram Listrik Df1x44 Epaviste Gratuit Idf Fr
Terbaru 16 Software Gambar Instalasi Listrik Rumah
Diagram Wiring Diagram Listrik Full Version Hd Quality Diagram Listrik Modwiring10 Legrandbleu It
Diagram Wiring Diagram Instalasi Listrik Industri Full Version Hd Quality Listrik Industri Eauclaireblackfriday Trodat Printy 4923 Fr
Download Wiring Diagram Listrik Full Hd Version Satindesires Kinggo Fr
Diagram Software Untuk Wiring Diagram Listrik Full Version Hd Quality Diagram Listrik Df1x44 Epaviste Gratuit Idf Fr
Diagram Software Untuk Wiring Diagram Listrik Full Version Hd Quality Diagram Listrik Df1x44 Epaviste Gratuit Idf Fr
Diagram Wiring Diagram Panel Listrik Full Version Hd Quality Panel Listrik Shwiring9 Annameacci It
Diagram Wiring Diagram Software Wiring Diagram Full Version Hd Quality Wiring Diagram Jwdiagrams11 Itwin It

Comments
Post a Comment